Viel Freiraum und Platz zur Entfaltung: Gepflegtes Wohnhaus in reizvoller Landschaft

Allgemein

Das große Wohnhaus überzeugt bereits auf den ersten Blick durch seine ansprechende und gepflegte Außenansicht, während im Innenbereich liebevoll erhaltene Stilelemente für eine besondere Atmosphäre sorgen. Gemeinsam mit dem vielseitig nutzbaren Grundstück entstehen sehr gute Voraussetzungen für ein gemütliches Zuhause, z. B. für Familien, die sich mehr Platz und Freiheit wünschen. Die große Hoffläche und die geräumigen Nebengebäude bieten viele Möglichkeiten – ob für Kleintierhaltung, Hobbys oder zum Werkeln. Im Garten lässt es sich wunderbar entspannen, spielen oder eigenes Obst und Gemüse anbauen, während die Weide direkt daneben gute Bedingungen zur Haltung von Schafen oder Hühnern bereithält. Insgesamt bietet dieses Hofgrundstück eine harmonische Kombination aus Wohnkomfort, Nutzfläche und naturnahem Leben. Sind Sie an unserem Angebot interessiert? Dann vereinbaren Sie einen Besichtigungstermin mit uns!

Ausstattung

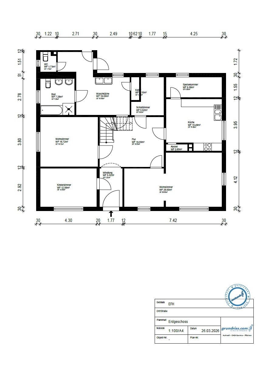
Das Wohnhaus wurde ca. 1900 - ggf. etwas später - erbaut und hat eine Wohnfläche von insgesamt 227 m². Neben dem Erdgeschoss und dem ausgebauten Dachgeschoss gibt es einen kleinen Kellerraum. Einige Investitionen wurden in der Vergangenheit getätigt, wie z.B. die Dacheindeckung mit Tonfalzziegeln, leichte Außendämmung dreier Außenwände, Erneuerung von Türen und Bad im Dachgeschoss und der Austausch der Fenster. Am und im Wohnhaus sind umfangreiche Revovierungsarbeiten, auch in energetischer Hinsicht, notwendig. Ausstattung: - großes Wohn- und Esszimmer - isolierverglaste Holzfenster - im Flur stilvolle Fliesen aus der Bauzeit - leichte Feuchtigkeitserscheinungen an der Kelleraußenwand, an der Fensterlaibung des Velux-Fensters und im Badezimmer des Dachgeschosses Nach schriftlicher Auskunft einer örtlichen Zimmerei sind augenscheinlich keine Schäden am Dachstuhl des Wohnhauses und der Scheune zu erkennen, ein alter wurmstichiger Balken vom Dachstuhl des Wohnhauses wurde demnach seinerzeit repariert. Bei älteren Gebäuden empfehlen wir grundsätzlich die Überprüfung des Daches durch eine Fachfirma. Haustechnik: Ölheizung von 2019 mit neuen Batterietanks, Kanalisation, Elektrizität, öffentliches Wasser, Telefon. Übergabe: Das Hausgrundstück kann kurzfristig nach einem notariellen Kaufvertrag übergeben werden.

Lage

Grundstück: Das Grundstück hat eine Gesamtgröße von 5.306 m³ und liegt in Einzellage idyllisch zwischen Feldern und Wald. Das Wohnhaus und die Nebengebäude sind umgeben von großzügigen Rasenflächen. Diese bieten viel Platz für Spielgeräte wie Schaukeln, Trampoline oder Klettergerüste. Aber natürlich auch zur Anlage von Blumenbeeten, Hochbeeten oder gemütlichen Sitzecken zum Verweilen. Hinter dem Gebäudeensemble schließt sich eine umzäunte Weidefläche an, so dass hier auch Kleintierhaltung möglich ist. Die Siedenburger Straße als übergeordnete Verbindungsstraße erinnert daran, dass eine gute Verkehrsanbindung zur B6 und auch zur B214 vorhanden ist. Nebengebäude: Als Nebengebäude sind ein angebautes Stallgebäude, eine angebaute Scheune mit massivem Fußboden, eine Wagenremise und ein massives Garagengebäude mit Abstellraum (von 1975) vorhanden. Die Stall ist mit Tonfalzziegeln und Wellasbestdach eingedeckt. Im Schweinestall befinden sich Schweinebuchten. Lage in Staffhorst: Die Hofstelle liegt im Außenbereich der Gemeinde Staffhorst - in Harbergen. Hier wohnen Sie in einer reizvollen Landschaft mit weitläufigen Feldern, Wiesen und Wäldern. Staffhorst liegt zwischen Asendorf und Siedenburg. Mit den Supermärkten in Siedenburg und Wietzen finden Sie gute Einkaufsmöglichkeiten, die in 10 Minuten mit dem Auto zu erreichen sind. Ebenso Kindergärten und jeweils eine Hausarztpraxis. Eine Grundschule befindet sich direkt in Siedenburg, die weiterführenden Schulen in Sulingen oder Nienburg. Weitere Informationen finden Sie unter: www. siedenburg-online.de oder unter: www.bruchhausen-vilsen.de.

Energieangaben

A+
< 30
A
< 50
B
< 75
C
< 100
D
< 130
E
< 160
F
< 200
G
< 250
H
> 250
Energieausweistyp *
Endenergiebedarf
Energiekennwert
232.00 kWh/(a⋅m²)
Energieeffizienzklasse
G
Energieangaben inkl. Warmwasser
Nein
Ausweis gültig bis
2036-03-19
Befeuerung/Energieträger
Oel
Baujahr
0

* Der oben genannte Energiekennwert spiegelt den Energieverbrauch in Kilowattstunden pro Jahr und Quadratmeter (kWh/(a⋅m²)) wieder und liefert den errechneten Energieverbrauch der Immobilie. Weitere Informationen finden Sie hier unter de.wikipedia.org/wiki/Energiebedarfsausweis

Weitere Informationen anfragen

  Ich habe die Datenschutzerklärung gelesen und zur Kenntnis genommen.
04252 93210