Perfekt für kreative Menschen und Ideen: Rotsteinhaus aus den 1920er Jahren mit ehemaliger Schmiede - Raum für Hobby und Handwerk

Allgemein

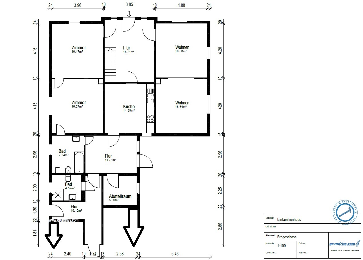
Dieses charmante Wohnhaus liegt eingebettet in eine idyllische Umgebung. Das geschmackvolle Haus mit seinem großzügigen Platzangebot bietet ideale Voraussetzungen für das Zusammenleben einer Familie, in der jeder seinen Raum finden kann. Viele stilvolle Elemente aus der Bauzeit sind noch im Original erhalten und verleihen dem Haus eine warme, historische Atmosphäre. Besonders die ehemalige Schmiede eröffnet spannende Möglichkeiten: Ob Atelier, Werkstatt, Kreativraum oder Ort für eigene Projekte – hier können Ideen Gestalt annehmen. Haben wir Ihr Interesse geweckt? Dann vereinbaren Sie einen Besichtigungstermin mit uns – denn nur bei einer Innen- und Außenbesichtigung können Sie erkennen, ob die Immobilie Ihren Anforderungen und Wünschen entspricht. Rufen Sie uns an!

Ausstattung

Das Wohnhaus wurde 1925 noch dem Trend der damaligen Zeit gebaut. Die ehemalige Schmiede ist durch einen Gang zwischen Wohnhaus und Schmiede zu erreichen. - Umfangreiche Umbaumaßnahmen wurden zwischen 1978 und 1982 durchgeführt (Fenster, Fassade, Umbau der Schmiede, Badezimmer) - Dachsanierung in den 1990er Jahren - Holzfußböden und PVC-Belag - Isolierverglaste Holzfenster im Wohnbereich - 3 Kellerräume. Bei älteren Gebäuden empfehlen wir grundsätzlich die Überprüfung des Dachstuhls durch eine Fachfirma. Haustechnik: Ölheizung mit Warmwasser aus 2001, Druckrohrentwässerung, Elektrizität, öffentliches Wasser. Der Antrag für einen Anschluss an das Glasfasernetz ist gestellt. Empfohlene Modernisierungsmaßnahmen lt. Energieausweis: Dämmung (Wände, Rohrleitungssystem, Kellerdecke, Dach) und Austausch der Fenster. Übergabe: Das Hausgrundstück kann kurzfristig nach Abschluss eines notariellen Kaufvertrages übergeben werden. Bebaubarkeit: Nach Auskunft des Fleckens Bruchhausen-Vilsen liegt das Grundstück im Außenbereich, eine weitere Bebauung ist voraussichtlich nicht möglich. Flurbereinigung: Das Grundstück liegt im Flurbereinigungsverfahren Haendorf-Essen. Die vereinfachte Flurbereinigung wurde mit Beschluss vom 09.08.2019 angeordnet und die Schlussfeststellung soll 2034 erfolgen.

Lage

Grundstück: Das Grundstück hat eine Größe von 2.618 m² und liegt an der befahrenen "Vilser Straße", die Bruchhausen-Vilsen mit Asendorf verbindet. Das Grundstück ist derzeit im vorderen Bereich gartenmäßig angelegt. Rückwärtig befindet sich alter Baumbestand. Sie können Ihre eigenen Ideen und Vorstellungen bei der Planung des Gartens einbringen. Nebengebäude: Ehemalige Schmiede, Holzgebäude und einstiger Hühnerstall. Lage in Asendorf: Das Hausgrundstück liegt zwischen Bruchhausen-Vilsen und Asendorf - postalisch gehört es zu Asendorf. Asendorf hat eine gute Infrastruktur und über die Bundesstraße 6 sind Syke und Bremen bzw. Nienburg und Hannover schnell erreichbar. Die Umgebung ist landwirtschaftlich reizvoll und zahlreiche Wege führen in die leicht hügelige Landschaft mit den weitläufigen Feldern, Weiden und Wäldern, die zu ausgedehnten Spaziergängen und Radtouren eingeladen. Asendorf hat ca. 3.000 Einwohner und bietet eine Vielzahl von Einkaufsmöglichkeiten für den täglichen Bedarf, außerdem einen Kindergarten, Grundschule und Ärzte. Asendorf ist ein Ort in der Samtgemeinde Bruchhausen-Vilsen und hiermit direkt durch die bekannte Museumseisenbahn verbunden. In Bruchhausen-Vilsen befinden sich weiterführende Schulformen und eine vielfältige Gastronomie. Weitere Informationen finden Sie unter www.asendorf.info oder www.bruchhausen-vilsen.de.

Energieangaben

A+
< 30
A
< 50
B
< 75
C
< 100
D
< 130
E
< 160
F
< 200
G
< 250
H
> 250
Energieausweistyp *
Endenergiebedarf
Energiekennwert
357.00 kWh/(a⋅m²)
Energieeffizienzklasse
H
Energieangaben inkl. Warmwasser
Nein
Ausweis gültig bis
2035-08-31
Befeuerung/Energieträger
Oel
Baujahr
1925

* Der oben genannte Energiekennwert spiegelt den Energieverbrauch in Kilowattstunden pro Jahr und Quadratmeter (kWh/(a⋅m²)) wieder und liefert den errechneten Energieverbrauch der Immobilie. Weitere Informationen finden Sie hier unter de.wikipedia.org/wiki/Energiebedarfsausweis

Weitere Informationen anfragen

  Ich habe die Datenschutzerklärung gelesen und zur Kenntnis genommen.
04252 93210