Unser Immobilienangebot

Rückzugsort im Grünen: Familienfreundliches Wohnhaus mit Scheune und viel Platz in Einzellage

Allgemein

Das Wohnhaus mit Einliegerwohnung ist sehr geräumig und ideal für die große Familie, die viel Platz im Haus, auf dem Grundstück und in den Nebengebäuden benötigt. Das Dachgeschoss bietet zusätzliche Wohnräume. Aufgrund der geringen Deckenhöhe eignet sich das Dachgeschoss besonders gut z. B. für Gästezimmer. Das Haus wurde immer wieder modernisiert und ausgebaut. Dennoch ist die Ausstattung überwiegend noch aus der Bauzeit - es sind (energetische) Investitionen notwendig. Der Garten bietet reichlich Platz für Hobbygärtner, spielende Kinder und entspannte Grillabende im Freien. Haben wir Ihr Interesse geweckt? Dann vereinbaren Sie einen Besichtigungstermin mit uns – denn nur bei einer Innen- und Außenbesichtigung können Sie erkennen, ob die Immobilie Ihren Anforderungen und Wünschen entspricht. Rufen Sie uns an!

Ausstattung

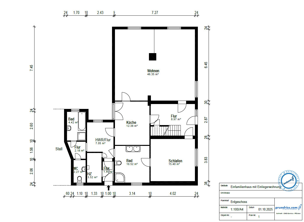
Das ursprüngliche Haus wurde 1928 gebaut und ab Mitte der 1970er Jahre umfangreich modernisiert und umgebaut. Das Haus verfügt teilweise über großzügige Räume, die sich individuell gestalten lassen. Die Küche und der HWR im Erdgeschoss sind Durchgangszimmer. Die Einliegerwohnung hat einen separaten Eingang über den Hof. Vom Balkon hat man einen herrlichen Blick über die weitläufige Natur und die Felder. Erdgeschoss: - Wohn-/Esszimmer mit Stäbchenparkett ausgelegt und großen Panoramafenstern in Ost/Süd-Richtung - Überwiegend elektrische Rollläden - teilweise mit Sonnensensoren - Neuwertige Einbauküche - Badezimmer mit ebenerdiger Dusche, Bidet, Waschbecken, WC, Handtuchheizkörper - Weiteres Badezimmer mit Badewanne, Dusche, Waschbecken (WC separat / angrenzend) - Gäste-WC - Partyraum mit Sichtbalken unter der Decke für die Einweihungsfeier. Dachgeschoss: - 4 Räume mit überwiegend elektrischen Rolläden - Einbauküche - Badezimmer mit Badewanne, Dusche, Waschbecken, WC (Waschmaschinenanschluss). Im Keller sind Ausblühungen an den Wänden erkennbar. Bei älteren Häusern empfehlen wir immer eine Überprüfung des Dachstuhls durch eine Fachfirma. Da das Haus immer wieder an die jeweilige Wohnsituation der Bewohner angepasst wurde, ist die Grundrisslösung in Teilen unkonventionell. So sind z. B. die Einliegerwohnung im Dachgeschoss und die Räumlichkeiten im vorderen Hausteil durch einen sehr schmalen Flur verbunden. Haustechnik: Zwei Gasthermen (Baujahr 1990 bzw. 1997), Elektrizität, öffentliches Wasser, Telefon. Im Badezimmer (Dachgeschoss) befindet sich ein Durchlauferhitzer. Eine Glasfaserleitung liegt an der Straße - das Hausgrundstück ist daran derzeit nicht angeschlossen. Übergabe: Das Hausgrundstück kann kurzfristig nach einen notariellen Kaufvertrag frei und geräumt übergeben werden.

Lage

Grundstück: Das Grundstück ist ca. 2.000 m² groß und muss noch vermessen werden, die Vermessungskosten tragen die Käufer. Derzeit ist das Grundstück überwiegend als Rasenfläche angelegt, die sich gut in eine familienfreundliche Nutzung mit Spielwiese, Schaukel, Sandkasten, Trampolin und Baumhaus umgestalten lässt. Oder wünschen Sie sich einen Obst- und Gemüsegarten mit Hochbeeten und Gewächshaus? Auch dafür ist noch Platz! Der Hofraum zwischen den Gebäuden ist gepflastert und sehr tragfähig. Zur Straße hin wird das Grundstück durch einen geschmiedeten Zaum auf roten Klinkersteinen begrenzt. Der ehemalige "Wirtschaftsgarten" wird durch eine rote Klinkermauer vom "Blumengarten" getrennt. An den Garten grenzt eine knapp 10.000 m² große Ackerfläche, die Sie auf Wunsch zusätzlich erwerben können! Nebengebäude: - Nahezu freitragende Holzscheune (Stirnseiten gemauert) mit zwei Garagen, Abstellräumen und Durchfahrtmöglichkeit - Ehemaliges Stallgebäude direkt am Wohnhaus mit Abstellräumen. Lage in Bramstedt: Das Hausgrundstück liegt am Ortsrand von Bramstedt, einem kleinen aufstrebenden Ort mit Bahnhofsanschluss und Einkaufsmöglichkeiten für den täglichen Bedarf. Der Ort gehört zur Stadt Bassum, die über eine ausgezeichnete Infrastruktur und ein eigenes Krankenhaus verfügt. Die Kinder aus Bramstedt und Umgebung können ortsnah zunächst den Städtischen Kindergarten und danach die Grundschule in Bramstedt besuchen. Die ehemalige Filiale der Kreissparkasse Syke wird in Zukunft für die Kinderbetreuung genutzt. Die geografische Lage ist durch die Entfernung zu Bremen und die schnelle Erreichbarkeit der Südbremer Autobahnen hervorragend. Das vielseitige und rege Vereinsleben zeigt einige Möglichkeiten der Freizeitgestaltung auf, ebenso wie die leicht hügelige und waldreiche Landschaft, die in die „Wildeshauser Geest“ übergeht. Ideal für Wanderer und Radfahrer. Weitere Informationen finden Sie unter: www.bassum.de.

Energieangaben
A+
< 30
A
< 50
B
< 75
C
< 100
D
< 130
E
< 160
F
< 200
G
< 250
H
> 250
Energieausweistyp *
Energieverbrauchskennwert
Energiekennwert
0.00 kWh/(a⋅m²)
Energieeffizienzklasse
E
Energieangaben inkl. Warmwasser
Nein
Ausweis gültig bis
2034-06-05
Befeuerung/Energieträger
Gas
Baujahr
1928

* Der oben genannte Energiekennwert spiegelt den Energieverbrauch in Kilowattstunden pro Jahr und Quadratmeter (kWh/(a⋅m²)) wieder und liefert den errechneten Energieverbrauch der Immobilie. Weitere Informationen finden Sie hier unter de.wikipedia.org/wiki/Energiebedarfsausweis

einfamilienhaus

Ort: 27211 Bassum

Zimmer: 6

Wohnfläche: 203 m2

Befeuerung: gas

Heizung: gas

Baujahr: 1928

Grundstück: 2.050 m2

Kaufpreis: 325.000,00 €

Provision für Käufer: 3,57 % des Kaufpreises inkl. Mehrwertsteuer

 

 

Informationen anfragen
 
  Ich habe die Datenschutzerklärung gelesen und zur Kenntnis genommen.