Unser Immobilienangebot

Ländliche, charmante Hofstelle an der Bundesstraße 51 - nur wenige Minuten von Bremen entfernt!

Allgemein

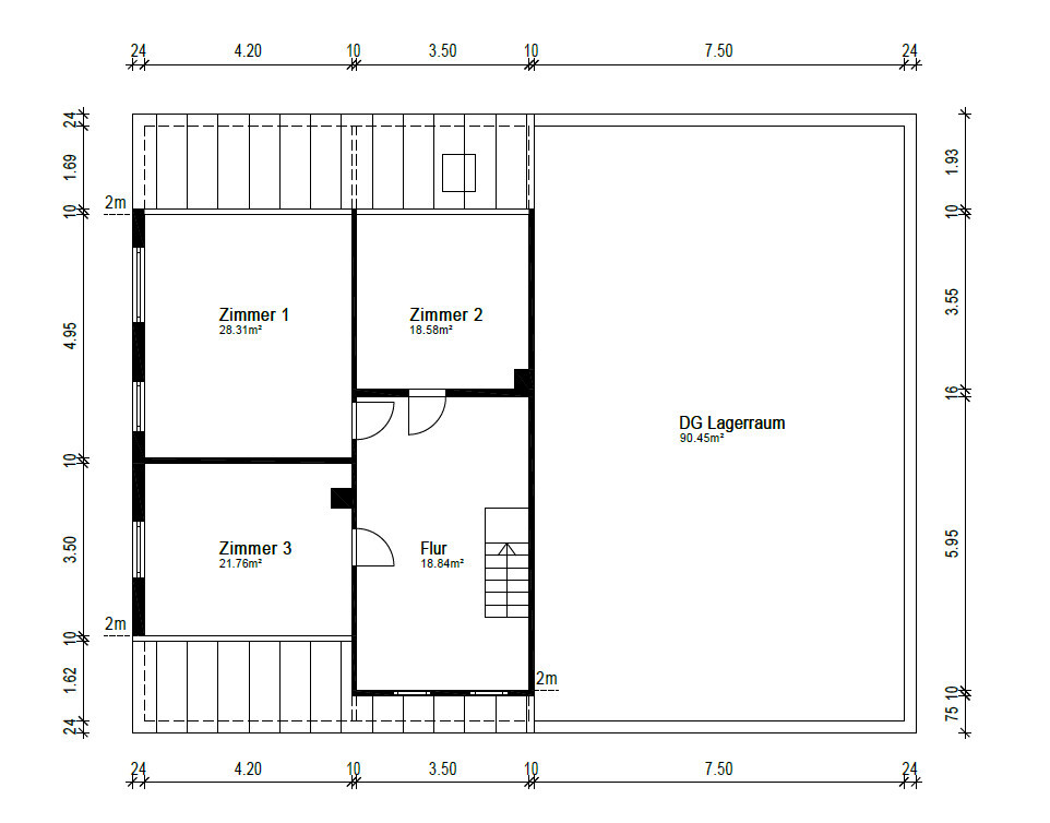
Ländlich Wohnen vor den Toren Bremens! Hier verbinden sich verkehrsgünstiges Wohnen und idyllischer Freiraum auf ideale Weise. Das Wohnhaus überzeugt mit einer großzügigen Raumaufteilung sowie durch teilweise original erhaltene Stilelementen aus der Bauzeit. Von der Küche aus haben Sie einen weitläufigen Blick über die umliegenden Felder. Die ehemaligen Stallungen bieten Ihnen vielfältige Möglichkeiten zur Tierhaltung auf Ihrem eigenen Hof, während die angrenzende Scheune zusätzlichen Raum für kreative Hobbys oder individuelle Projekte bereithält. Haben wir Ihr Interesse geweckt? Dann vereinbaren Sie einen Besichtigungstermin mit uns – denn nur bei einer Innen- und Außenbesichtigung können Sie erkennen, ob die Immobilie Ihren Anforderungen und Wünschen entspricht. Rufen Sie uns an!

Ausstattung

Die Hofstelle wurde 1943 erbaut und bewahrt in Teilen noch die ursprünglichen Stilelemente, unteranderem die Fliesen auf der Wohndiele und der Küche, hohe Räume, Holzfüllungstüren und die Hauseingangstür. Die Ausstattung des Wohnhauses wurde über die Jahre nicht wesentlich angepasst. - Fenster: überwiegend Kunststofffenster aus den 1990er / 2000er Jahren - Fußböden: Holz, Fliesen - Bad im Erdgeschoss (innenliegend) mit Badewanne, Dusche, WC und Waschbecken - Dach: eingedeckt mit Heisterholzer Ziegel - Elektrik älteren Datums. Ein Wasserschaden im Dachgeschoss wurde behoben - die abschließenden Malerarbeiten sind noch nicht erfolgt. Haustechnik: Gaszentralheizung mit Warmwasserversorgung (1997), Elektrizität, Wasser, Kanalisation. Es ist nicht bekannt, ob der Ofen auf der Wohndiele die Vorgaben nach dem Bundesimmissionsschutzgesetz (BimSchV - Stufe 1 und 2) erfüllt. Empfehlungen aus dem Energieausweis zur kostengünstigen Modernisierung: Dämmung der Abseitenwände, obersten Geschossdecke und Dachschrägen (beheizter Bereich), Austausch der Holzfenster gegen Fenster mit Isolier- bzw. Wärmeschutzverglasung, Austausch der Heizungsanlage gegen eine Brennwert-, ggfs. Pelletanlage inkl. hydraulischem Abgleich der Heizungsanlage.

Lage

Grundstück: Das Grundstück umfasst eine Fläche von 7.912 m² und bietet ausreichend Platz für Hobbys oder Tierhaltung. Die Hofauffahrt liegt direkt an der B51, wodurch eine optimale Verkehrsanbindung garantiert ist! Hinter dem Haus erwartet Sie eine großzügige Terrasse, von der aus Sie einen weiten Blick ins Grüne haben - der ideale Ort, um dem Alltag zu entfliehen und die Ruhe zu genießen! Der alte Baumbestand verleiht dem Hofgrundstück einen besonderen Charakter und Charme. Nebengebäude: Angrenzend an das Wohnhaus befinden sich ehemalige Stallungen und eine Scheune. Des Weiteren sind ein ehemaliger Hühnerstall und ein ehemaliges Stallgebäude (eingedeckt mit Wellasbestplatten) auf dem Grundstück vorhanden. Lage: Die Hofstelle befindet direkt an der Bundesstraße 51 im Ortsteil Fahrenhorst der Gemeinde Stuhr. Die Ortschaft liegt unmittelbar an der Einmündung der B 439 in die B 51, welche eine direkte Verbindung zum Ortsteil Seckenhausen und zur Stadt Bassum ist. Das Stadtzentrum der Hauptstadt Bremen erreichen sie schon nach knapp 20 Kilometern und bietet Ihnen eine schnelle Erreichbarkeit zu einer vollausgestatteten Infrastruktur. Fahrenhorst selbst ist bekannt für ausgedehnte Waldflächen, viel Grün und eine intakte Infrastruktur - der ideale Ort für jene, die auf der Suche nach Ruhe und Naturverbundenheit sind! Weitere Informationen finden Sie unter: www.stuhr.de.

Energieangaben
A+
< 30
A
< 50
B
< 75
C
< 100
D
< 130
E
< 160
F
< 200
G
< 250
H
> 250
Energieausweistyp *
Endenergiebedarf
Energiekennwert
273.00 kWh/(a⋅m²)
Energieeffizienzklasse
H
Energieangaben inkl. Warmwasser
Nein
Ausweis gültig bis
2035-11-06
Befeuerung/Energieträger
Fluessiggas
Baujahr
1943

* Der oben genannte Energiekennwert spiegelt den Energieverbrauch in Kilowattstunden pro Jahr und Quadratmeter (kWh/(a⋅m²)) wieder und liefert den errechneten Energieverbrauch der Immobilie. Weitere Informationen finden Sie hier unter de.wikipedia.org/wiki/Energiebedarfsausweis

resthof

Ort: 28816 Stuhr / Fahrenhorst

Zimmer: 7

Wohnfläche: 201 m2

Befeuerung: fluessiggas

Heizung: zentral

Baujahr: 1943

Grundstück: 7.912 m2

Kaufpreis: 248.000,00 €

Provision für Käufer: 3,57 % des Kaufpreises inkl. Mehrwertsteuer

 

 

Informationen anfragen
 
  Ich habe die Datenschutzerklärung gelesen und zur Kenntnis genommen.