Unser Immobilienangebot

Wohnen mit Geschichte! Rotsteinwohnhaus mit charmantem Charakter - ideal auch für Handwerk oder Hobby!

Allgemein

Dieses urige Wohnhaus präsentiert sich eingebettet in eine idyllische Umgebung mit altem, gewachsenem Baumbestand und mehreren charaktervollen Nebengebäuden. Die stilvollen Elemente aus der Bauzeit sind in weiten Teilen original erhalten und verleihen dem Anwesen einen besonderen historischen Charme. Die Immobilie bietet mit ihrer soliden Ausstattung, den ausbaufähigen Flächen und den vorhandenen Nebengebäuden ein hohes Maß an Flexibilität – ideal für Familien, Handwerksbetriebe oder Individualisten mit Platzbedarf und Ideen. Haben wir Ihr Interesse geweckt? Dann vereinbaren Sie einen Besichtigungstermin mit uns – denn nur bei einer Innen- und Außenbesichtigung können Sie erkennen, ob die Immobilie Ihren Anforderungen und Wünschen entspricht. Rufen Sie uns an!

Ausstattung

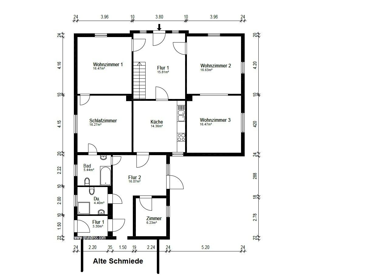
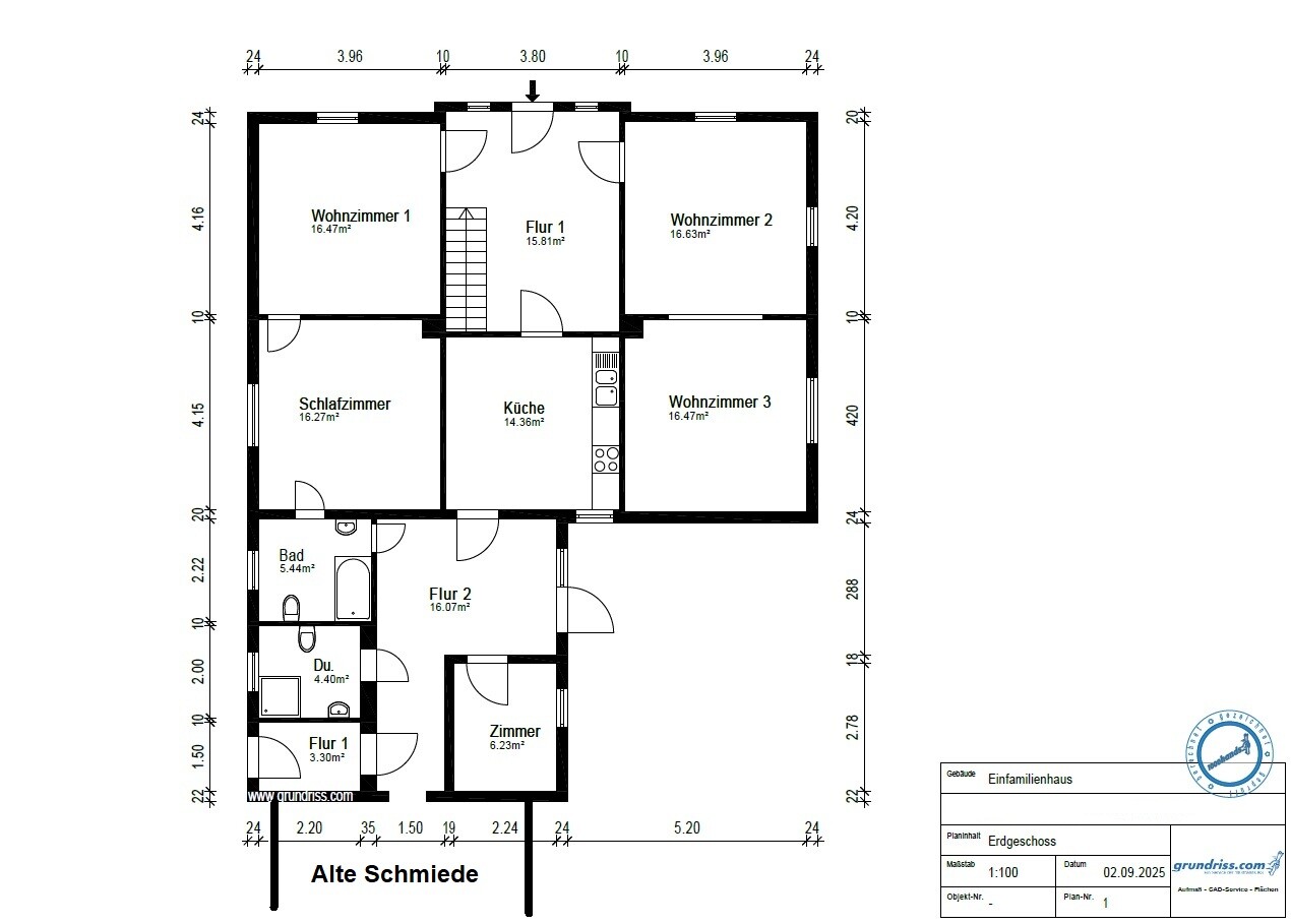
Das im Jahr 1925 erbaute Wohnhaus überzeugt durch seinen soliden Bestand, einen durchdachten Grundriss sowie vielseitige Ausbau- und Nutzungsmöglichkeiten. Die Immobilie erstreckt sich über drei Kellerräume, ein Erdgeschoss, ein überwiegend ausgebautes Dachgeschoss sowie einen Zwischenbau, der zur Werkstatt führt, die einst als Schmiede genutzt wurde. Diese bildet heute eine ideale Grundlage für handwerkliche Tätigkeiten oder kreative Projekte. Zwischen 1978 und 1982 wurden umfassende Umbaumaßnahmen durchgeführt. In diesem Zuge wurden unter anderem die Schmiede umgebaut, neue Fenster eingebaut und die Fassade verklinkert. Das Badezimmer wurde in den 1980er Jahren erneuert. In den Jahren 1990 und 2004 erfolgte eine Dachsanierung, wodurch die Bausubstanz weiter aufgewertet wurde. - Flur und Küche mit Holzböden und PVC-Belag - die alten Türen wurden überarbeitet aber erhalten - isolierverglaste Holzfenster im Wohnbereich. Bei älteren Gebäuden empfehlen wir grundsätzlich die Überprüfung des Dachstuhls durch eine Fachfirma. Haustechnik: Ölheizung mit Warmwasser aus 2001, Druckrohrentwässerung, Elektrizität, öffentliches Wasser. Der Antrag für einen Anschluss an das Glasfasernetz ist gestellt. Empfohlene Modernisierungsmaßnahmen lt. Energieausweis: Dämmung (Wände, Rohrleitungssystem, Kellerdecke, Dach) und Austausch der Fenster. Übergabe: Das Hausgrundstück kann kurzfristig nach Abschluss eines notariellen Kaufvertrages übergeben werden. Bebaubarkeit: Nach Auskunft des Fleckens Bruchhausen-Vilsen liegt das Grundstück im Außenbereich, eine weitere Bebauung ist voraussichtlich nicht möglich. Flurbereinigung: Das Grundstück liegt im Flurbereinigungsverfahren Haendorf-Essen. Die vereinfachte Flurbereinigung wurde mit Beschluss vom 09.08.2019 angeordnet und die Schlussfeststellung soll 2034 erfolgen.

Lage

Grundstück: Das Wohnhaus mit Nebengebäuden steht auf einer Gesamtfläche von 2.618 m². Das Grundstück liegt an einer gut frequentierten Durchfahrtsstraße, was die Sichtbarkeit und Erreichbarkeit erhöht – ein möglicher Vorteil für gewerbliche Nutzungskonzepte oder kombinierte Wohn- und Arbeitsprojekte. Gleichzeitig bieten die Größe des Grundstücks und der vorhandene Baumbestand Potenzial für Rückzugsbereiche und geschützte Gartenflächen abseits der Straße. Direkt an der Hofeinfahrt befindet sich eine großzügig angelegte Gartenfläche mit Staudenbeeten als Blickfang. Nebengebäude: Das Wohnhaus ist durch den Haupteingang oder auch direkt vom Hof über den Zwischenbau zu erreichen. Weitere Nebengebäude - darunter eine ehemalige Schmiede - bieten vielseitige Nutzungsmöglichkeiten, sowohl privat als auch gewerblich, ideal für professionelles Handwerk oder ein kreatives Hobby mit handwerklichem Anspruch. Weitere Nebengebäude befinden sich hinter dem Wohnhaus und runden das harmonische Gesamtbild des Anwesens ab. Ergänzt wird das Anwesen durch zwei Nebengebäude: ein im Jahr 2022 errichtetes Holzgebäude sowie ein ehemaliger Hühnerstall, der heute als praktischer Lagerplatz für Holz dient. Lage in Asendorf: Die charmante Gemeinde Asendorf liegt im Herzen der Samtgemeinde Bruchhausen-Vilsen. Die Grund- und Nahversorgung ist in allen wichtigen Lebensbereichen (z.B. Ärzte, Kindergarten, Schule, Lebensmittelversorgung, Sparkasse, Volksbank, Tankstelle, Frisör, verlässliche Grundschule usw.) gewährleistet. Eine Realschule und ein Gymnasium sind in nur 8 km Entfernung in Bruchhausen- Vilsen zu finden. Über die Bundesstraße 6 sind die Städte Nienburg und Bremen gut zu erreichen. Weitere Informationen finden Sie unter: www.asendorf.info oder www.bruchhausen-vilsen.de.

Energieangaben
A+
< 30
A
< 50
B
< 75
C
< 100
D
< 130
E
< 160
F
< 200
G
< 250
H
> 250
Energieausweistyp *
Endenergiebedarf
Energiekennwert
357.00 kWh/(a⋅m²)
Energieeffizienzklasse
H
Energieangaben inkl. Warmwasser
Nein
Ausweis gültig bis
2035-08-31
Befeuerung/Energieträger
Oel
Baujahr
1925

* Der oben genannte Energiekennwert spiegelt den Energieverbrauch in Kilowattstunden pro Jahr und Quadratmeter (kWh/(a⋅m²)) wieder und liefert den errechneten Energieverbrauch der Immobilie. Weitere Informationen finden Sie hier unter de.wikipedia.org/wiki/Energiebedarfsausweis

zweifamilienhaus

Ort: 27330 Asendorf

Zimmer: 7

Wohnfläche: 173 m2

Befeuerung: oel

Heizung: zentral

Baujahr: 1925

Grundstück: 2.618 m2

Kaufpreis: 245.000,00 €

Provision für Käufer: 3,57 % des Kaufpreises inkl. Mehrwertsteuer

 

 

Informationen anfragen
 
  Ich habe die Datenschutzerklärung gelesen und zur Kenntnis genommen.