Unser Immobilienangebot

Zentral gelegener Resthof für Hobby-Pferdehaltung

Allgemein

Diese einzigartige Hofstelle bietet eine seltene Gelegenheit für Tier- und insbesondere Pferdeliebhaber, Wohnen und Tierhaltung direkt miteinander zu verbinden – und das in zentraler Lage im Dorf. Das Wohnhaus überzeugt durch seinen ländlichen Charakter und gut erhaltene Originalelemente wie Fliesen im Eingangsbereich, Terrazzo-Boden in der Küche sowie klassische Füllungstüren. Die Raumhöhe im Erdgeschoss sorgt für ein großzügiges Wohngefühl. Ein besonderes Highlight ist der weite Blick von der Wohnküche aus direkt über die angrenzende Pferdeweide. Ob ein gemütlicher Kaffee auf dem Balkon oder auf der Terrasse zwischen Küche und Weide: Hier lassen sich ländliche Idylle und Alltag wunderbar verbinden. Ein echtes Plus für alle, die ihre Tiere in unmittelbarer Nähe wissen möchten und auf viel Platz für Lager- und Handwerkszwecke nicht verzichten wollen. Ergänzt wird das Raumangebot durch zahlreiche Nebengebäude mit vielfältigen Nutzungsmöglichkeiten – vom Stall bis zur Werkstatt. Die großzügige Grundstücksfläche ermöglicht nicht nur die Tierhaltung, sondern bietet auch Potenzial für Selbstversorgung oder gärtnerische Projekte. Damit vereint diese Hofstelle auf einzigartige Weise ländliches Lebensgefühl mit praktischem Nutzen – ein Ort mit Geschichte, Charme und Zukunft. Haben wir Ihr Interesse geweckt? Dann vereinbaren Sie einen Besichtigungstermin mit uns – denn nur bei einer Innen- und Außenbesichtigung können Sie erkennen, ob die Immobilie Ihren Anforderungen und Wünschen entspricht. Rufen Sie uns an!

Ausstattung

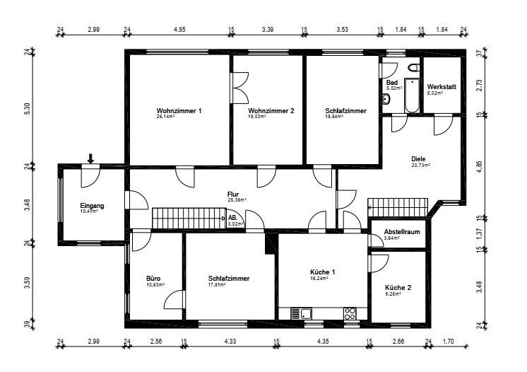
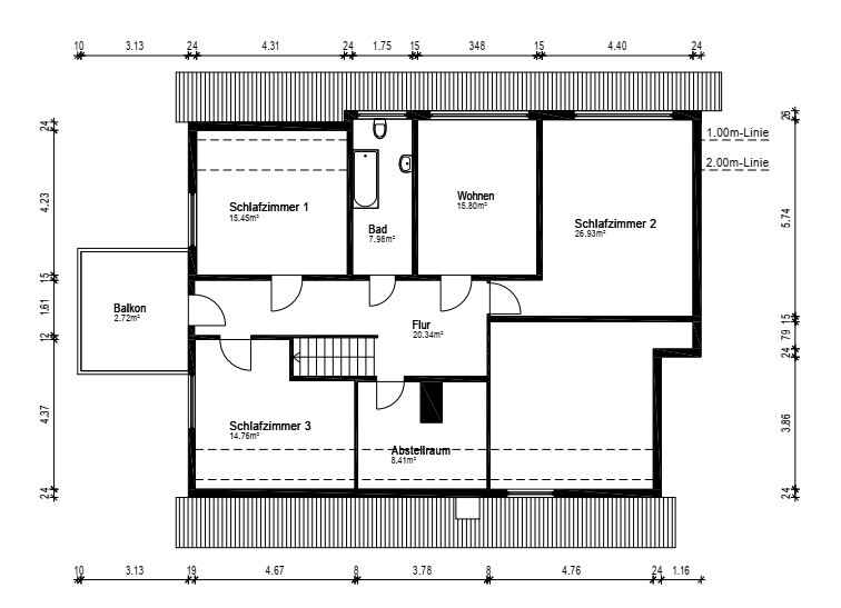
Das um 1900 errichtete ehemalige Bauernhaus besticht durch seinen großzügigen Grundriss mit ca. 318 m² Wohnfläche, verteilt auf insgesamt 9 Zimmer. Die Immobilie bietet vielfältige Nutzungsmöglichkeiten und eignet sich ideal für Familien mit Platzbedarf und zur Tierhaltung – insbesondere für Pferde. In den vergangenen Jahren wurden bereits einzelne Modernisierungsmaßnahmen durchgeführt: So wurde im Jahr 2013 die Gaszentralheizung erneuert. Zudem sind teilweise Fenster sowie Bodenbeläge ausgetauscht worden. Die übrige Ausstattung befindet sich größtenteils im Zustand der Bauzeit bzw. stammt aus den 1960er Jahren. Entsprechend besteht ein umfassender Sanierungsbedarf, der jedoch viel Potenzial für individuelle Gestaltung und die Wiederherstellung des historischen Charmes bietet. - Gut erhaltene Stilelemente: Original-Terrazzoboden in der Küche, Fliesen im Flur, historische Füllungstüren - Bodenbeläge: Vinyl, Laminat, Fliesen, Parkett sowie Holzdielen - Fenster: Isolierverglaste Kunststofffenster (Einbau 2014) - Badezimmer EG: Ausstattungsstand ca. 1960er Jahre mit Badewanne, WC und Waschbecken - Badezimmer DG: Duschwanne, WC und Waschbecken - Teilkeller: Nutzbar, jedoch besteht ein Feuchtigkeitsproblem. Bei älteren Gebäuden empfehlen wir grundsätzlich die Überprüfung des Daches durch eine Fachfirma. Ein Gutachten aus 07/2024 liegt dazu bereits vor. Auf Wunsch stellen wir Ihnen dieses gern zur Verfügung. Haustechnik: Gaszentralheizung von 2013, Elektrizität, öffentliches Wasser. Übergabe: Das Hausgrundstück kann kurzfristig nach einem notariellen Kaufvertrag übergeben werden.

Lage

Lage Grundstück: Das großzügige Hofgrundstück liegt im Ortskern von Schwaförden und bietet mit 9.359 m² vielseitige Nutzungsmöglichkeiten. Als Nebengebäude dienen eine große Wagenremise, eine Doppelgarage, eine große Scheune sowie der ehemalige Schweinestall mit Pferdeboxen. Die Dächer der Nebengebäude weisen zum Teil Undichtigkeiten auf. Die Dachkonstruktion über dem Stallgebäude ist in einem sehr schlechten Zustand. Schwaförden ist Teil der gleichnamigen Samtgemeinde mit rund 6.730 Einwohnern. Der Resthof liegt im Ortskern, d.h. mit der Nahversorgung durch einen Edeka-Markt, Hausarztpraxis, Bankfiliale, der Oberschule mit Turnhalle sowie der Kirche befinden sich alle wichtigen Stätten des täglichen Bedarfs in unmittelbarer Nachbarschaft. Auch der Kindergarten ist mit dem Fahrrad bequem zu erreichen. Lage Schwaförden: Schwaförden verfügt über eine gut entwickelte Infrastruktur. Die Bushaltestelle der Schulbuslinien liegt direkt vor der Tür und bringt die Schulkinder zur Grundschule Sudwalde oder dem Gymnasium in Sulingen. Die Linie 123 ist in ca. 2 km zu erreichen und verbindet Sulingen und Bassum. D.h. auch für Pendler ist die Verkehrsanbindung gut ausgebaut. In Bassum befindet sich ein Bahnhof mit Anschluss an das regionale Schienennetz nach Bremen bzw. Osnabrück. Die umgebende Landschaft mit ausgedehnten Wald- und Moorgebieten bietet einen hohen Freizeitwert – zum Reiten, Radfahren, Wandern oder für andere Aktivitäten in der Natur.

Energieangaben
A+
< 30
A
< 50
B
< 75
C
< 100
D
< 130
E
< 160
F
< 200
G
< 250
H
> 250
Energieausweistyp *
Endenergiebedarf
Energiekennwert
220.00 kWh/(a⋅m²)
Energieeffizienzklasse
G
Energieangaben inkl. Warmwasser
Nein
Ausweis gültig bis
2035-08-11
Befeuerung/Energieträger
Gas
Baujahr
1907

* Der oben genannte Energiekennwert spiegelt den Energieverbrauch in Kilowattstunden pro Jahr und Quadratmeter (kWh/(a⋅m²)) wieder und liefert den errechneten Energieverbrauch der Immobilie. Weitere Informationen finden Sie hier unter de.wikipedia.org/wiki/Energiebedarfsausweis

resthof

Ort: 27252 Schwaförden

Zimmer: 9

Wohnfläche: 318 m2

Befeuerung: gas

Heizung: zentral

Baujahr: 1907

Grundstück: 9.359 m2

Kaufpreis: 250.000,00 €

Provision für Käufer: 3,57 % des Kaufpreises inkl. Mehrwertsteuer

 

 

Informationen anfragen
 
  Ich habe die Datenschutzerklärung gelesen und zur Kenntnis genommen.