Unser Immobilienangebot

Top Lage: Schmuckes Zweifamilienhaus

Allgemein

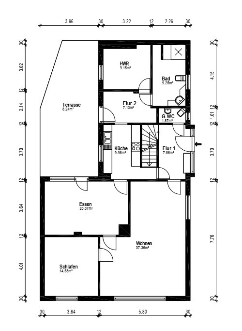
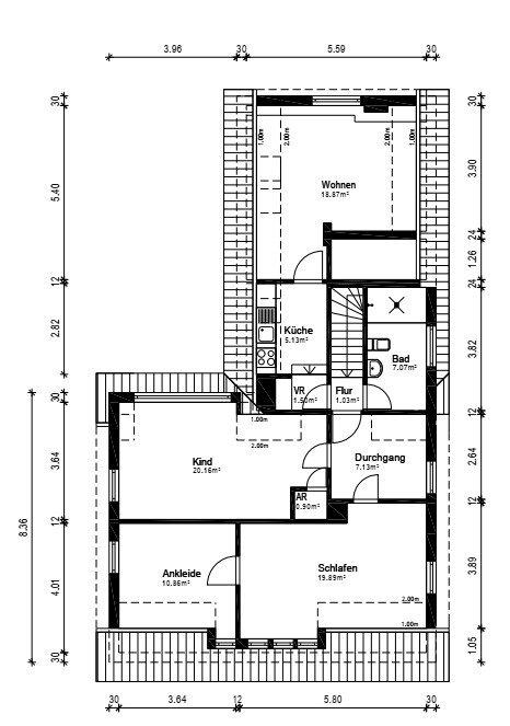
Das große Wohnhaus von 1954 wurde damals in hochwertiger Ausstattung mit besonders erlesener und repräsentativer Atmosphäre erbaut und 1973 umgebaut. Es liegt in einer begehrten und bestens erschlossenen Wohnlage mit hoher Lebensqualität vor den Toren Bremens – ideal für Familien, die Wert auf gute Versorgung und kurze Wege legen. Eine ideale Voraussetzung für eine Familie mit Kindern, Mehrgenerationenwohnen, gemeinsames Leben mit Freunden oder der Kombination aus Eigennutzung und Vermietung. Auf einem großzügigen Grundstück auf zwei Flurstücken mit gepflegter Gartenanlage präsentiert sich das Hausgrundstück in einem guten Zustand. Zwei separate Wohneinheiten bieten jeweils Platz, Helligkeit und Komfort. Die Ausstattung des Wohnhauses stammt zum Teil noch aus der Bauzeit, größere Investitionen wie z. B. eine neue Dacheindeckung, wurden bereits vorgenommen. Haben wir Ihr Interesse geweckt? Dann vereinbaren Sie einen Besichtigungstermin mit uns – denn nur bei einer Innen- und Außenbesichtigung können Sie erkennen, ob die Immobilie Ihren Anforderungen und Wünschen entspricht. Rufen Sie uns an!

Ausstattung

Das Zweifamilienhaus wurde 1954 in damals hochwertiger Bauweise errichtet und beinhaltet zwei Kellerräume, Erdgeschoss und ein ausgebautes Dachgeschoss sowie zwei Garagen. Die Bauweise ist solide und eine kontinuierliche Instandhaltung wurde vorgenommen. - Ausstattung zum Teil aus der Bauzeit (Außenwände, Bodenbeläge, Holzvertäfelungen, Heizkörper in Mauernischen, etc.) - Neue Dacheindeckung mit Tonziegeln und Dämmung der Dachschrägen ca. 1999 - Bad im Erdgeschoss mit ebenerdiger Dusche und WC - Erneuerung der Erkerfenster 1999 - Bad im Dachgeschoss mit ebenerdiger Dusche und WC - Im Flurbereich gibt es Feuchtigkeitserscheinungen. Haustechnik: - Gasheizung von 2009, Elektrizität, öffentliches Wasser, Kanalisation. Strom kann für beide Wohnungen getrennt abgelesen werden, Wasser und Gas aktuell nicht. Übergabe: - Das Hausgrundstück kann kurzfristig nach einem notariellen Kaufvertrag übergeben werden.

Lage

Grundstück: Das Hausgrundstück mit einer Grundstücksgröße von 887 m² liegt in einer gut angebundenen Wohnlage in Leeste. Die Hofauffahrt ist gepflastert. Der Garten ist mit verschiedenen Sträuchern, Stauden und Hecken eingewachsen. Hinter dem Haus ist eine geschützte Terrasse gepflastert, eine Markise kann ausgefahren werden. Hinter den Garagen befindet sich eine weitere überdachte Sitzecke mit Glasdach. Ein Blumenbeet und eine Rasenfläche runden das Grundstück ab. Die Umgebung des Grundstückes zeichnet sich durch eine ausgezeichnete Infrastruktur aus. Von der Landesstraße und einer benachbarten Spedition sind Geräusche hörbar. Nebengebäude: Doppelgarage. Lage: Einkaufsmöglichkeiten wie REWE, ALDI und Netto sind in wenigen Minuten fußläufig erreichbar und decken den täglichen Bedarf optimal ab. Ergänzt wird das Angebot durch nahegelegene Bäckereien, Apotheken, eine Tankstelle sowie mehrere gastronomische Einrichtungen. Auch im Bereich Bildung und Betreuung ist die Lage hervorragend geeignet für Familien - die Kindertagesstätte "Angelser Knirpse" hat im August 2025 den Betrieb neu aufgenommen. Grund- und weiterführende Schulen, darunter das Schulzentrum Leeste, sind in wenigen Minuten mit dem Fahrrad oder Bus erreichbar. Ergänzend sorgt ein gut ausgebautes Netz an Buslinien und die Nähe zum Bahnhof Kirchweyhe mit Anschluss an den Regional- und S-Bahnverkehr für eine schnelle Verbindung nach Bremen und umliegende Städte. Die nächste Bushaltestelle liegt genau vor der Tür. Weitere Informationen finden Sie unter: www.weyhe.de.

Energieangaben
A+
< 30
A
< 50
B
< 75
C
< 100
D
< 130
E
< 160
F
< 200
G
< 250
H
> 250
Energieausweistyp *
Endenergiebedarf
Energiekennwert
197.00 kWh/(a⋅m²)
Energieeffizienzklasse
F
Energieangaben inkl. Warmwasser
Nein
Ausweis gültig bis
2035-09-19
Befeuerung/Energieträger
AcidGas
Baujahr
1954

* Der oben genannte Energiekennwert spiegelt den Energieverbrauch in Kilowattstunden pro Jahr und Quadratmeter (kWh/(a⋅m²)) wieder und liefert den errechneten Energieverbrauch der Immobilie. Weitere Informationen finden Sie hier unter de.wikipedia.org/wiki/Energiebedarfsausweis

zweifamilienhaus

Ort: 28844 Weyhe / Ahausen

Zimmer: 7

Wohnfläche: 218 m2

Befeuerung: gas

Heizung: zentral

Baujahr: 1954

Grundstück: 887 m2

Kaufpreis: 315.000,00 €

Provision für Käufer: 3,57 % des Kaufpreises inkl. Mehrwertsteuer

 

 

Informationen anfragen
 
  Ich habe die Datenschutzerklärung gelesen und zur Kenntnis genommen.